欢迎访问成都市龙泉驿区妇幼保健院 | 三级甲等妇幼保健院
  • 院内新闻 | 通知公告 | 院务公开 | 人才招聘 | 学术动态 | 下载列表
  • 院务公开

    首页>新闻中心 >院务公开

    导乐产房装修项目比选公告

    浏览次数:2104|发布时间: 2022-08-26 11:27:53


    一、项目名称:导乐产房装修项目

    二、采购方式:院内比选

    三、评审标准:综合评审

    四、供应商参加本次采购活动,应满足:

    1.投标人持有效的建筑、装饰施工资质。

    2.具有独立法人资格,有固定的办公和工作场地,能独立承担法律责任;
    3.具有良好的商业信誉和健全的财务会计制度;
    4.具有履行合同所必需的设备和专业技术能力;

    5.具有依法缴纳税收和社会保障资金的良好记录;
    6.参加本次比选活动前三年内,在经营活动中没有重大违法记录;
    7.法律、行政法规规定的其他条件;
    8.本项目不接受联合体参与采购活动。

    9.未被列入“信用中国”网站(www.creditchina.gov.cn)“记录失信被执行人或重大税收违法案件当事人名单或政府采购严重违法失信行为”记录名单;不处于中国政府采购网(www.ccgp.gov.cn)“政府采购严重违法失信行为信息记录”中的禁止参加政府采购活动期间。(以投递文件当天“信用中国”网站(www.creditchina.gov.cn)及中国政府采购网(www.ccgp.gov.cn)查询结果为准,如相关失信记录已失效,投标人需提供相关证明资料)。

    五、比选文件要求

    凡报名参加比选的单位均须制作比选文件正本和副本各一份,文件胶装密封,每一页均须加盖公章,内容包含且不限于以下资料:

    1、比选文件目录

    2、报价表或报价方案;

    3、资格、授权证明及配套文件;

    4、技术或服务应答表及配套支撑材料;

    5、供应商类似业绩或可证明其综合竞争能力的其它材料。

    如果参选单位未按要求提供相关完整、真实资料,比选文件视为无效。

    六、项目要求(详见附件1、2): 

    1、本次项目实行总包干,最高限价13万元(总包干价)

    2、施工地点:成都市龙泉驿区妇幼保健院导乐产房

    3、设计和施工必须符合建筑安全规范要求

    4、中选公司需要按照医院构想,完成效果图,并经院方确认后方可开工

    5、要求中选公司在得到甲方开工通知后,20天内完成项目

    6、要求中选公司所有施工人员,必须服从和执行医院疫情防控要求

    7、施工结算以完工审计报告为准

      

     

     

     

    附件1

    工程量清单

    序号

    名称

    计量单位

    工程量(约)

    1

    砖砌体拆除

    m3

    5

    2

    金属门1021拆除

    2

    3

    过梁

    2

    4

    门洞扩大砖砌体拆除

    m3

    1

    5

    门洞零星项目一般抹灰

    m2

    7

    6

    原地面地板胶拆除

    m2

    9

    7

    余方弃置

    m3

    12

    8

    平面抹灰层拆除

    m2

    6

    9

    天棚面龙骨及饰面拆除

    m2

    15

    10

    开孔(打洞)

    6

    11

    多孔砖墙

    m3

    3

    12

    墙面一般抹灰

    m2

    26

    13

    楼(地)面卷材防水

    m2

    30

    14

    卫生间地面防滑地砖粘贴

    m2

    9

    15

    卫生间内墙块料墙面

    m2

    21

    16

    轻钢龙纸面石膏板隔墙与隔音棉填充

    m2

    51

    17

    门锁安装

    6

    18

    装饰门带套0821

    2

    19

    装饰门带套0921

    2

    20

    装饰门带套1421

    2

    21

    铝合金窗 推拉窗

    2

    22

    乳胶漆墙面

    m2

    100

    23

    织锦缎裱糊(墙布)

    m2

    142

    24

    吊顶天棚(楼下管道安装与卫生间改造部分)

    m2

    20

    25

    塑料管硬聚氯乙烯螺旋排水管110

    m

    31

    26

    塑料排水管pvc50

    m

    8

    27

    PPR塑料给水管

    m

    35

    28

    坐便器

    2

    29

    洗脸盆

    2

    30

    排水栓安装

    2

    31

    地漏

    2

    32

    电线管

    m

    26

    33

    电源线

    m

    78

    34

    普通灯具

    6

    35

    排气扇

    2

    36

    照明开关

    4

    37

    10孔插座

    20

    38

    网线

    m

    100

    39

    网络插口

    4

    40

    其他费用(包括税费、建渣清运、清洁费、文明施工费等所有保障施工顺利进行的费用)



      

     

     

     

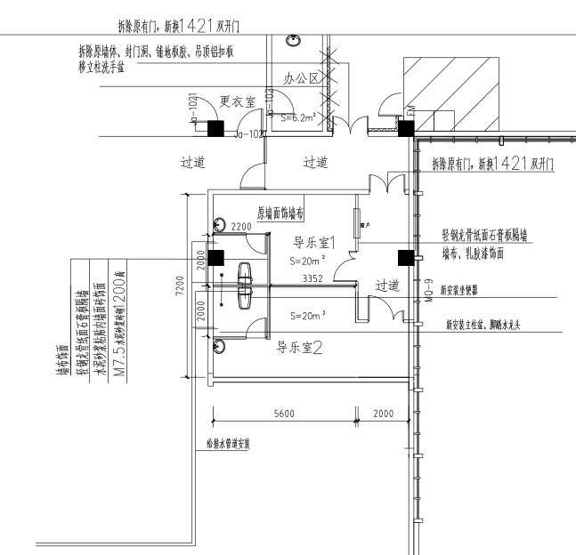
    附件2:

    初始设计图

    图片1.png 

     

     

      

    七、综合评分法

     

    评分因素及分值

    评分标准

    报价(30分)

    满足比选文件要求且最后报价最低的供应商的价格为比选基准价,其价格分为满分。其他供应商的价格分统一按照下列公式计算:比选报价得分=(比选基准价/最后比选报价)×30

    施工组织设计

    20分)

    1、施工目标、范围、任务明确(5分),2、施工程序和工作流程设计详细、合理(5分),3、施工措施得力(5分),4、提出合理化建议(5分)

    以上四项,每提供一项得3分,每项描述清晰适用得2

    业绩

    (10分)

    供应商2019年1月1日(含1日)以来至少有已完成类似项目业绩,每有一个得2分,最多得10分。(说明:提供施工合同复印件和竣工验收报告复印件。)类似项目是指:工程建设、装饰装修、改造项目。

    企业资质(15分)

    具有建筑工程施工或建筑装修装饰工程专业承包二级资质得8分,具有建筑工程施工或建筑装修装饰工程专业承包一级资质得15分(提供资质复印件)

    项目经理任职资格及业绩(10分)

    项目经理具有高级职称的得4分;有一个类似施工业绩的得1分,最多得6分(附复印件)

    现场施工管理人员(14分)

    1、配备具有全国注册施工工程师的,每一个得4分,本条最多得8分

    2、配备具有全国注册安全工程师的得3分,本条最多得6

    以上两项,可重复得分(附复印件)

    响应文件的规范性

    1分)

    没有细微偏差情形的得1分;有一项细微偏差扣0.5分,直至该分项值扣完为止。

    注:本项评分因素适用于施工组织设计、应急服务措施以外的评分项。细微偏差是指响应文件基本上符合磋商文件要求,但在个别地方存在漏项或者提供了不完整的技术信息和数据等情况,并且补正这些遗漏或者不完整不会对其他供应商造成不公平的结果。细微偏差不影响响应文件的有效性。

     

    、其他

    1、业主方联系人

    谢老师   69330809(通过该电话进行比选报名)

    黄老师   69330702

    2、比选报名和资料递交要求:

    公司盖章,密封胶装

    资料必须编制目录、页码并成册,双面打印,盖鲜章。

    截止报名和资料递交时间:20229217:00

    递交地址:成都市龙泉驿区妇幼保健院后勤科,三楼C304

    (为落实新冠疫情防控要求,所有资料均邮寄至上述地址,不接受现场递交资料)

    、比选时间:20229515:00(暂定)

        (投标人不到现场,若有变更,采购人会根据递送资料时留存的公司电话联系投标人)

        比选地点:成都市龙泉驿区妇幼保健院三楼会议室

     

     

    成都市龙泉驿区妇幼保健院

    2022826

     

     

     

     

     

    附件:比选文件格式

    1、营业执照(复印件盖鲜章)。

    2、建筑、装饰施工资质证书(复印件盖鲜章)。

    3、法定代表人身份证复印件、法定代表人授权书(样表1)及授权代表身份证复印件。

    4、项目要求应答表(样表2)。

    5、报价一览表(样表3)。

    6、资格承诺函(样表4)。

    7、施工安全承诺和工程质量承诺。

    8、供应商类似项目业绩一览表,须提供合同复印件盖鲜章。

    9、供应商需要说明的其他内容。

     

     

     

     

    样表1

    法定代表人授权书

    成都市龙泉驿区妇幼保健院:

    本授权声明:我 (姓名)  (比选申请人全称) 的法定代表人,现授权 (姓名) 为我单位授权代表人,以本单位的名义参加        (项目名称            的比选活动。授权代表人在比选活动和评比、谈判以及合同签订过程中所签署的一切文件和处理与之有关的一切事务,我及我单位均予以承认,并全部承担其产生的所有权利和义务。

    授权代表无转委托权。特此委托。

     

     

    比选申请人:(全称并加盖公章)

    法定代表人(签字):              

    授权代表人(签字):               

    日期:                   

     

    附:法定代表人和授权代表身份证件正反面复印件

     

     

     

    样表2

    项目要求应答表

    项目名称:                

     

    序号

    项目要求

    具体应答

    响应/偏离


    第六条“项目要求”及附件1、附件2

     

    完全响应第六条“项目要求”及附件1、附件2


























    注:比选申请人必须据实填写,不得虚假应答,否则将取消其比选或中选资格。如与比选文件第六条“项目要求”无偏离,则无须逐条应答,但要在此表中明确其完全响应。如有偏离条款(包括正偏离和负偏离),请将偏离条款逐条应答。未明确应答的条款,视为默认接受及响应比选文件,并对比选申请人的比选申请文件具有约束力。

     

     

    比选申请人:(全称并加盖公章) 

    法定代表人或授权代表(签字):                   

    日期:               

     

    样表3

    报价一览表

    项目名称:                

    名称

    计量单位

    工程量(约)

    报价(元)









    ......




    合计:                  大写:

    : 1、报价费用根据工程量清单实行分项报价(包括税费、建渣清运、清洁费、文明施工费等所有保障施工顺利进行的费用)

    2、所有报价均用人民币表示,“报价”是供应商响应本项目所有要求的全部工作内容的价格体现,包括供应商完成本项目所需的一切费用,该总价即为履行合同的固定价格。

    3、本项目报价方式为一次性报价,不再进行二次报价,需在响应文件中附本“报价一览表”。

     

    比选申请人:(全称并加盖公章)

    法定代表人或授权代表(签字):                   

    日期:               

     

    样表4

    资格承诺函

    成都市龙泉驿区妇幼保健院:

    我单位参加    成都市龙泉驿区妇幼保健院保健院导乐产房装修项目   的比选活动,根据比选文件要求,现郑重承诺如下:

    一、具备《中华人民共和国政府采购法》第二十二条和本项目规定的条件:

    (一)具有独立承担民事责任的能力;

    (二)具有良好的商业信誉和健全的财务会计制度;

    (三)具有履行合同所必需的设备和专业技术能力;

    (四)有依法缴纳税收和社会保障资金的良好记录;

    (五)参加此项采购前三年内,在经营活动中没有重大违法记录;

    (六)法律、行政法规规定的其他条件。

    二、截至首次响应文件递交截止日,我单位未被列入失信被执行人、重大税收违法案件当事人名单、政府采购严重违法失信行为记录名单。

    本单位对上述承诺的内容事项真实性负责。如经查实上述承诺的内容事项存在虚假,我单位愿意接受以提供虚假材料谋取中标追究法律责任。

     

     

    比选申请人(全称并加盖公章):

    法定代表人或授权代表(签字或加盖个人名章):       

    日期: